Visualize Your Future Home with our Interactive Floorplans
If you’re like most people, looking at a floorplan doesn’t really help you visualize what a home looks like. That’s why builders like us, put model homes on the ground. Once you’ve walked through a home, the plan on paper makes more sense. Your home should provide the right amount of space, in the right places, to function well in your daily life. Are there several people in your family or do you live alone? Do you need a home office? Do you have two cars? Do you cook a lot? All of these questions will steer your decision making when it comes to selecting a floorplan that suits your lifestyle.
Holiday Builders offers interactive floorplans to help homebuyers find the right plan. Interactive floorplans allow you to transform your homebuying journey from abstract to actionable. An interactive floorplan is a digital version of a homeās layout that allows you to:
- Place furniture in each room
- Toggle architectural options like extra bedrooms, extended lanais, or upgraded kitchens
- Explore room dimensions, traffic flow, and layout functionality
- Save, share, and print your layout for reference or design inspiration
Benefits of Interactive Floorplans:
1. Visualize How Youāll Live in the Space
Static floorplans can make it hard to understand room scale. With a furniture placement feature, you can drop in your sofa, bed, dining table – and see if it all fits comfortably. This helps answer the big question: Will my lifestyle work here? Will my belongings fit in this space?
2. Explore Architectural Options with Confidence
Many new construction homes come with customizable layout choices. Want a fourth bedroom instead of a den? The tool allows you to toggle options instantly and see the impact on the overall plan.
3. Make Smarter Design Choices
Seeing furniture inside your chosen layout helps you make better design decisions. For instance, you may realize a certain floorplan doesnāt give you enough wall space for your entertainment center or your sectional sofa.
4. Keep Everyone on the Same Page
Once youāve created your customized layout, you can print or email it to your friends and family, . This shared visual tool helps everyone stay on the same pageāfrom initial design to move-in day.
6. Have Fun & Feel Empowered
Building a new home should be exciting, not overwhelming. These tools give you the power to test, tweak, and explore without pressure, right from your phone, tablet, or computer. And yes, playing with floorplans can be surprisingly addictive!

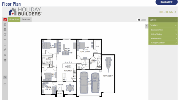
Interactive floorplans help you make decisions. Decisions like what furniture do you keep if you’re downsizing or what you need if you’re upsizing for a growing family. Interactive floorplans make it easier to imagine your new home, before the slab is poured. The image above is a sample of a Highland floorplan, 1,637 sf with three bedrooms, two baths and a three-car garage. customized using Holiday Builders’ interactive tool. This plan shows furnishings in three bedrooms, a complete office in the den, a couch and loveseat in the living room, and even four stools at the kitchen island. The three-car garage has plenty of room for the BMW and the Ford F150, and the jet ski – perfect for Florida living!
Visit HolidayBuilders.com and find the floorplan that suits your needs. Then scroll down to the interactive floorplan features and start creating your dream home. There’s no better time to buy a new construction home. Ask about our incentives and opportunities for a low interest rate.
Tags: Build your dream home, Home design, Interactive floorplans